Appartamento in vendita a Martinengo

Appartamento in vendita a Martinengo

In vendita
Appartamento
Martinengo
320.000 €
Descrizione
Cerchi una casa nuova, ma finora niente ti ha davvero convinto perché gli spazi ti sembrano sempre troppo piccoli… e magari disposti su più piani?
Allora non puoi perderti quello che stiamo per proporti.

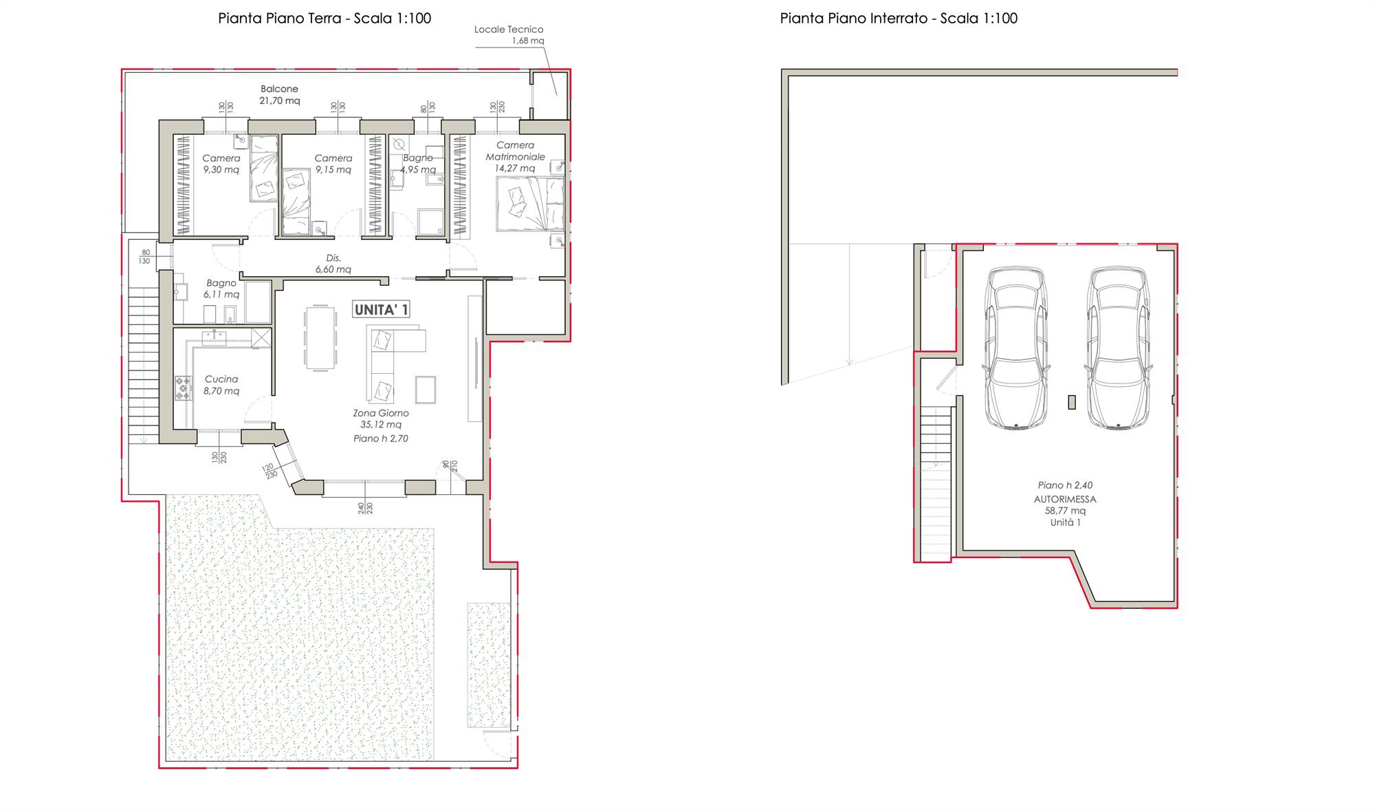
Qui hai tutto su un unico livello, al piano terra, con ambienti grandi, luminosi e finalmente vivibili.
Si tratta di un quadrilocale al piano terra con ingresso completamente indipendente e un grande giardino privato di quasi 100 mq, lo spazio ideale per vivere all’aperto con la privacy che cerchi.

All’interno, la zona giorno di oltre 43 mq ti accoglie con la possibilità di scegliere tra cucina separata o open space, a seconda di come immagini la tua quotidianità.
Il disimpegno conduce a due bagni spaziosi e finestrati, tre camere da letto — di cui una matrimoniale da 14 mq con cabina armadio di quasi 4 mq.

Ogni ambiente è pensato per offrirti libertà, ordine e comfort senza rinunciare a nulla.
Dal giardino parte una scala privata che collega direttamente al comodissimo box doppio in larghezza, di quasi 60 mq.

Una soluzione davvero rara nel nuovo: tutto su un piano, spazi ampi, classe energetica A4, impianto fotovoltaico e sistema full electric, in un contesto moderno e tranquillo a Martinengo.

E non è tutto: nel residence sono ancora disponibili altre soluzioni con tagli e metrature diverse, sia al piano terra con giardino, sia al piano primo con terrazze vivibili.
Tutte accomunate da una sola cosa: spazi davvero generosi, come non se ne vedono più nel nuovo.

Contattaci senza impegno e scopri quella perfetta per te.

Contattaci oggi stesso per scoprire tutte le soluzioni e scegliere quella più adatta alle tue esigenze.
Lo Studio Immobiliare CASAMICA ti accompagna passo dopo passo, con etica, trasparenza e una profonda conoscenza del territorio.
L’annuncio riporta le metrature commerciali salvo errori e/o omissioni. Le fotografie, la descrizione e le metrature sono puramente indicative e non costituiscono vincolo contrattuale.
Caratteristiche principali
Codice:
25ML020 unità 1
Città:
Martinengo
Categoria:
Appartamento
Locali:
4
Camere:
3
Bagni:
2
Mq:
168
Box:
3
Balconi:
1
Piano:
Terra
Classe energetica:
A4
Stato Immobile:
In Costruzione
Giardino:
Privato
Mappa
via gian andrea gavazzeni - Martinengo (BG)
Planimetrie
Richiedi informazioni
Invia
Cookie preference